Продаж офісне приміщення на вул. Благовісна, 148 поверх - 1/3 2 194 800 грн

Продаж офісне приміщення на вул. Благовісна, 148 поверх - 1/3

вул. Благовісна, 148, район Соснівський район, Черкаси, Черкаська область, Україна
29.10.2025 №10826
Продаж офісне приміщення на вул. Благовісна, 148 поверх - 1/3 Черкаси - фото 1
Продаж офісне приміщення на вул. Благовісна, 148 поверх - 1/3 Черкаси - фото 2
Продаж офісне приміщення на вул. Благовісна, 148 поверх - 1/3 Черкаси - фото 3
Тип об'єкта: Офісні приміщення 
Сторона угоди: Вибрати 
Поверховість:
Поверх:
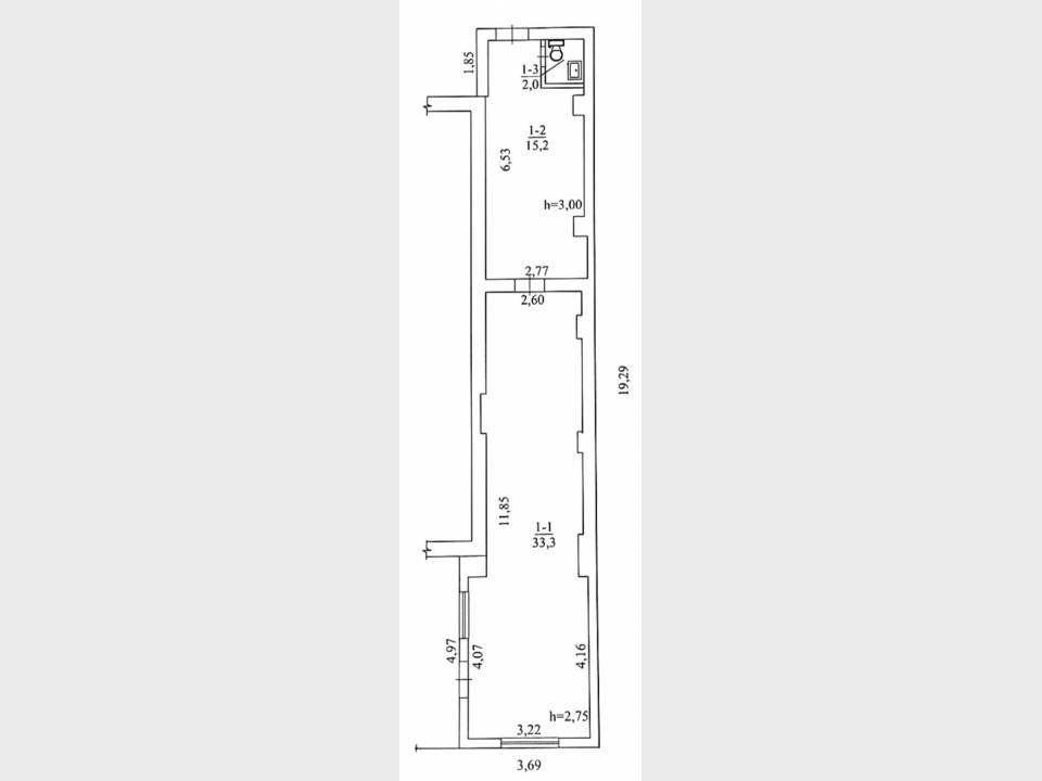
Загальна площа: 51 м²
Вбудовано-прибудоване приміщення аптеки знаходиться в будівлі дитячої поліклініки. Фасад на магістральну вулицю Благовісна, окремий вхід. Є парковка.
Торгова зала, підсобне приміщення, власний санвузол.
Можливе використання як за поточним призначенням, так і під інші види діяльності: медичний кабінет, офіс, магазин.

ПП Черкаське агентство нерухомості

Був онлайн 14 січня 11:02
Немає відгуків
29.10.2025 №10826
2 194 800 грн
Зворотний дзвінок Повідомлення Контакти

ПП Черкаське агентство нерухомості

Був онлайн 14 січня 11:02
Немає відгуків
Схожі оголошення
Продаж торгове приміщення на Нижня Горова, 57 приміщень - 3, поверх - 1/9 Черкаси
13 фото більше
18
Продаж торгове приміщення на Нижня Горова, 57 приміщень - 3, поверх - 1/9
Черкаси, Придніпровський район, Нижня Горова, 57
SONATA
26 січня
Продаж офісне приміщення на вул. Припортова, 22А приміщень - 2, поверх - 1/3 Черкаси
5 фото більше
10
Продаж офісне приміщення на вул. Припортова, 22А приміщень - 2, поверх - 1/3
Черкаси, Придніпровський район, вул. Припортова, 22А
SONATA
30 жовтня 2025
Продаж офісне приміщення на вул. Смілянська, 118 поверх - 1/5 Черкаси
1 фото більше
6
Продаж офісне приміщення на вул. Смілянська, 118 поверх - 1/5
1 243
Черкаси, Соснівський район, вул. Смілянська, 118
ПП Черкаське агентство нерухомості
29 жовтня 2025
Продаж приміщення вільного призначення на вул. Пастерівська, поверх - 1/1 Черкаси
15 фото більше
20
Продаж приміщення вільного призначення на вул. Пастерівська, поверх - 1/1
1 375
Черкаси, Соснівський район, вул. Пастерівська,
ПП Черкаське агентство нерухомості
29 жовтня 2025
Продаж офісне приміщення на вул. Смілянська, 23 приміщень - 1, поверх - 2/9 Черкаси 5
Продаж офісне приміщення на вул. Смілянська, 23 приміщень - 1, поверх - 2/9
2 55 1
Черкаси, Соснівський район, вул. Смілянська, 23
ПП Черкаське агентство нерухомості
29 жовтня 2025
Продаж офісне приміщення на вул. Смілянська, 23 приміщень - 1, поверх - 1/9 Черкаси 2
Продаж офісне приміщення на вул. Смілянська, 23 приміщень - 1, поверх - 1/9
1 41 1
Черкаси, Соснівський район, вул. Смілянська, 23
ПП Черкаське агентство нерухомості
29 жовтня 2025
Продаж офісне приміщення на вул. Смілянська, 23 приміщень - 3, поверх - 2/9 Черкаси 3
Продаж офісне приміщення на вул. Смілянська, 23 приміщень - 3, поверх - 2/9
2 43 3
Черкаси, Соснівський район, вул. Смілянська, 23
ПП Черкаське агентство нерухомості
29 жовтня 2025
Продаж офісне приміщення на вул. Чорновола, 259 приміщень - 12, поверх - 1/1 Черкаси
2 фото більше
7
Продаж офісне приміщення на вул. Чорновола, 259 приміщень - 12, поверх - 1/1
1 448 12
Черкаси, Придніпровський район, вул. Чорновола, 259
ПП Черкаське агентство нерухомості
29 жовтня 2025
Продаж офісне приміщення на вул. Чорновола, 257 приміщень - 12, поверх - 1/1 Черкаси
11 фото більше
16
Продаж офісне приміщення на вул. Чорновола, 257 приміщень - 12, поверх - 1/1
1 434 12
Черкаси, Придніпровський район, вул. Чорновола, 257
ПП Черкаське агентство нерухомості
29 жовтня 2025
Продаж офісне приміщення на вул. Нечуй Левицького, 30 приміщень - 12, поверх - 1/1 Черкаси
15 фото більше
20
Продаж офісне приміщення на вул. Нечуй Левицького, 30 приміщень - 12, поверх - 1/1
1 455 12
Черкаси, Придніпровський район, вул. Нечуй Левицького, 30
ПП Черкаське агентство нерухомості
29 жовтня 2025
Продаж торгове приміщення на Нижня горова, 57 приміщень - 5, поверх - 1/10 Черкаси
15 фото більше
20
Продаж торгове приміщення на Нижня горова, 57 приміщень - 5, поверх - 1/10
Черкаси, Придніпровський район, Нижня горова, 57
SONATA
28 жовтня 2025
Продаж офісне приміщення на Шевченка, 268/2 приміщень - 7, поверх - 1/1 Черкаси
7 фото більше
12
Продаж офісне приміщення на Шевченка, 268/2 приміщень - 7, поверх - 1/1
1 106 7
Черкаси, Соснівський район, Шевченка, 268/2
SONATA
28 жовтня 2025
Продаж приміщення вільного призначення на Смілянська, 2 приміщень - 1, поверх - 1/3 Черкаси
13 фото більше
18
Продаж приміщення вільного призначення на Смілянська, 2 приміщень - 1, поверх - 1/3
1 20 1
Черкаси, Соснівський район, Смілянська, 2
SONATA
28 жовтня 2025
Продаж приміщення вільного призначення на вул. Пастерівська, 25 поверх - 1/1 Черкаси
1 фото більше
6
Продаж приміщення вільного призначення на вул. Пастерівська, 25 поверх - 1/1
Черкаси, Соснівський район, вул. Пастерівська, 25
SONATA
27 жовтня 2025

Продаж офісне приміщення на вул. Благовісна, 148 поверх - 1/3 купити в Черкаси за ціною 2 194 800 грн. Номер пропозиції 10826 на сайті qip.ua. Вбудовано-прибудоване приміщення аптеки знаходиться в будівлі дитячої поліклініки. Фасад на магістральну вулицю Благовісна, окремий вхід. Є парковка. Торгова зала, підсобне приміщення, власний санвузол. Можливе використання як за поточним призначенням, так і під інші види діяльності: медичний кабінет, офіс, магазин.

qip.ua - ваш надійний сайт для оренди та продажу нерухомості. Великий вибір пропозицій, найкращі ціни та перевірені агенти. Відкрийте для себе світ якісної нерухомості на qip.ua!

Повернутися наверх