Продаж 4к квартири 84.2 кв. м 2 189 324 грн

Продаж 4к квартири 84.2 кв. м

Івана Павла II вул., д. 27, район Будівельників, Івано-Франківськ, Івано-Франківська область, Україна на мапі
6 жовтня №7394
Продаж 4к квартири 84.2 кв. м Івано-Франківськ - фото 1
Продаж 4к квартири 84.2 кв. м Івано-Франківськ - фото 2
Продаж 4к квартири 84.2 кв. м Івано-Франківськ - фото 3
Продаж 4к квартири 84.2 кв. м Івано-Франківськ - фото 4
Продаж 4к квартири 84.2 кв. м Івано-Франківськ - фото 5
Продаж 4к квартири 84.2 кв. м Івано-Франківськ - фото 6
Продаж 4к квартири 84.2 кв. м Івано-Франківськ - фото 7
Продаж 4к квартири 84.2 кв. м Івано-Франківськ - фото 8
Продаж 4к квартири 84.2 кв. м Івано-Франківськ - фото 9
Сторона угоди: Вибрати 
Параметри
Тип об'єкта: Квартира 
Кількість кімнат:
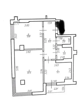
Загальна площа: 84.2 м²
Житлова площа: 54.8 м²
Площа кухні: 8.8 м²
Поверховість будинку:
Поверх:
Продаж 4-х кім.кв. по вул. Івана Павла II загальною площею 84.2 кв.м, житлова - 54.8 кв.м, (17.0 кв.м., 12.6 кв.м., 12.6 кв.м., 12,6 кв.м), кухня - 8,8 кв.м, 2 лоджії.
Опалення централізоване.
Квартира підготована до виконання ремонтних робіт.
Оскільки лоджія і два вікна виходять на прохідну частину вулиці Івасюка дану квартиру можна перевести в нежитлове приміщення та використовувати як комерційне приміщення.
Будинок розташований в густо населеному районі з добре розвинутою інфраструктурою, поруч дошкільні, шкільні навчальні заклади, маркети, супермаркети, зупинки громадського транспорту і т.п.
Деталі за вказаним номером телефону.

Олена Вовкович

Був онлайн вчора 11:33
Немає відгуків
6 жовтня №7394
2 189 324 грн
Зворотний дзвінок Повідомлення Контакти

Олена Вовкович

Був онлайн вчора 11:33
Немає відгуків
Місцезнаходження
Івана Павла II вул., д. 27, район Будівельників, Івано-Франківськ, Івано-Франківська область, Україна
Схожі оголошення

Продаж 4к квартири 84.2 кв. м купити в Івано-Франківськ за ціною 2 189 324 грн. Номер пропозиції 7394 на сайті qip.ua. Продаж 4-х кім.кв. по вул. Івана Павла II загальною площею 84.2 кв.м, житлова - 54.8 кв.м, (17.0 кв.м., 12.6 кв.м., 12.6 кв.м., 12,6 кв.м), кухня - 8,8 кв.м, 2 лоджії. Опалення централізоване. Квартира підготована до виконання ремонтних робіт. Оскільки лоджія і два вікна виходять на прохідну частину вулиці Івасюка дану квартиру можна перевести в нежитлове приміщення та використовувати як комерційне приміщення. Будинок розташований в густо населеному районі з добре розвинутою інфраструктурою,...

qip.ua - ваш надійний сайт для оренди та продажу нерухомості. Великий вибір пропозицій, найкращі ціни та перевірені агенти. Відкрийте для себе світ якісної нерухомості на qip.ua!

Повернутися наверх