Продаж 2к Квартира 78 кв.м Повітряних сил вул. 4 945 122 грн

Продаж 2к Квартира 78 кв.м Повітряних сил вул.

Повітряних сил вул., район Солом'янський район, Київ, Київська область, Україна на мапі
13 жовтня №9709
Продаж 2к Квартира 78 кв.м Повітряних сил вул. Київ - фото 1
Продаж 2к Квартира 78 кв.м Повітряних сил вул. Київ - фото 2
Продаж 2к Квартира 78 кв.м Повітряних сил вул. Київ - фото 3
Продаж 2к Квартира 78 кв.м Повітряних сил вул. Київ - фото 4
Продаж 2к Квартира 78 кв.м Повітряних сил вул. Київ - фото 5
Продаж 2к Квартира 78 кв.м Повітряних сил вул. Київ - фото 6
Сторона угоди: Вибрати 
Параметри
Тип об'єкта: Квартира 
Кількість кімнат:
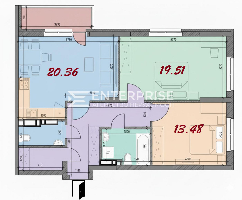
Загальна площа: 78 м²
Житлова площа: 33 м²
Площа кухні: 20 м²
Поверховість будинку: 25 
Поверх: 15 
Продаж 2-кімнатної квартири в новому ЖК OkLand за адресою: проспект Повітряних сил, 56-Б біля Севастопольської площі.
Загальна площа - 78,0 кв.м, житлова площа - 33.00 кв.м, кухня-вітальня - 20.36 кв.м.
Квартира розташована на 15 поверсі 25-поверхового будинку.

Стан квартири від будівельників: на підлозі лазерна стяжка, встановлені панорамні вікна, радіатори, вхідні двері, лічильники на воду, опалення та електроенергію, пожежна сигналізація.
Житловий комплекс має свою велику озеленену територію, 4 спортивні майданчики та 3 просторі дитячі ігрові зони.
Поруч розвинена інфраструктура: магазини, школи, дитячі садочки, аптеки, громадський транспорт тощо.
Перегляди за попередньою домовленістю.
Можливий продаж за державними програмами: єОселя, єВідновлення, Постанови Кабінету міністрів України №280, 600 та 719.
Ціна: 117000 у.о, код об'єкта: #26140

Олександр Циба

Був онлайн 13 жовтня 14:19
Немає відгуків
13 жовтня №9709

Олександр Циба

Був онлайн 13 жовтня 14:19
Немає відгуків
Місцезнаходження
Повітряних сил вул., район Солом'янський район, Київ, Київська область, Україна
Схожі оголошення

Продаж 2к Квартира 78 кв.м Повітряних сил вул. купити в Київ за ціною 4 945 122 грн. Номер пропозиції 9709 на сайті qip.ua. Продаж 2-кімнатної квартири в новому ЖК OkLand за адресою: проспект Повітряних сил, 56-Б біля Севастопольської площі. Загальна площа - 78,0 кв.м, житлова площа - 33.00 кв.м, кухня-вітальня - 20.36 кв.м. Квартира розташована на 15 поверсі 25-поверхового будинку. Стан квартири від будівельників: на підлозі лазерна стяжка, встановлені панорамні вікна, радіатори, вхідні двері, лічильники на воду, опалення та електроенергію, пожежна сигналізація. Житловий комплекс має свою велику озеленену...

qip.ua - ваш надійний сайт для оренди та продажу нерухомості. Великий вибір пропозицій, найкращі ціни та перевірені агенти. Відкрийте для себе світ якісної нерухомості на qip.ua!

Повернутися наверх