Продаж Квартира 2-кімнатна, 1/5 поверх на Пластова, 5 1 755 772 грн

Продаж Квартира 2-кімнатна, 1/5 поверх на Пластова, 5

Пластова, 5, район Дніпровський район, Київ, Київська область, Україна на мапі
05.03.2026 №60605
Продаж Квартира 2-кімнатна, 1/5 поверх на Пластова, 5 Київ - фото 1
Продаж Квартира 2-кімнатна, 1/5 поверх на Пластова, 5 Київ - фото 2
Продаж Квартира 2-кімнатна, 1/5 поверх на Пластова, 5 Київ - фото 3
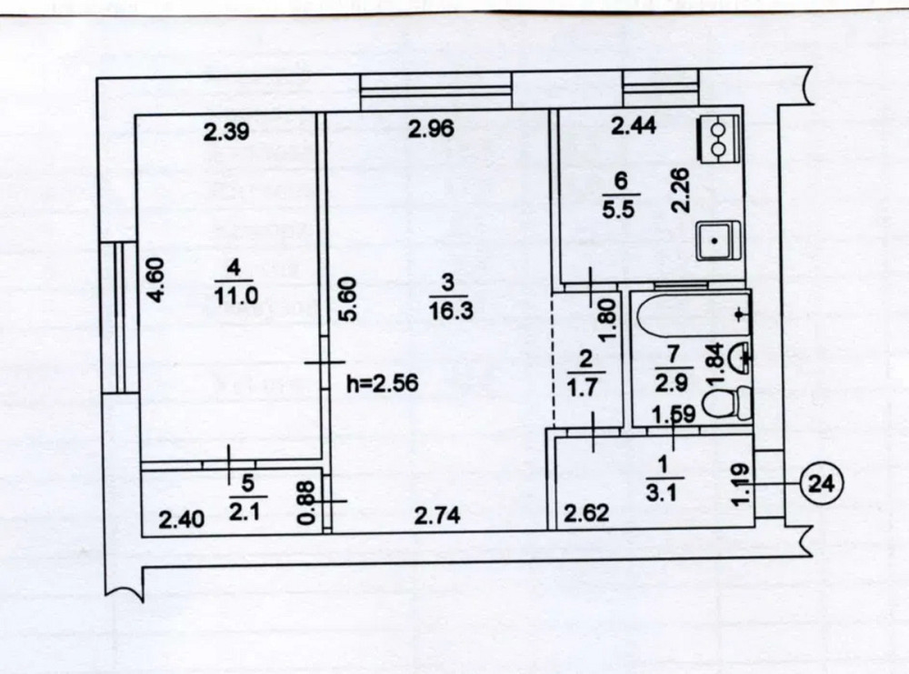
Продаж Квартира 2-кімнатна, 1/5 поверх на Пластова, 5 Київ - фото 4
Продаж Квартира 2-кімнатна, 1/5 поверх на Пластова, 5 Київ - фото 5
Продаж Квартира 2-кімнатна, 1/5 поверх на Пластова, 5 Київ - фото 6
Сторона угоди: Вибрати 
Параметри
Тип об'єкта: Квартира 
Кількість кімнат:
Загальна площа: 43 м²
Площа кухні: 6 м²
Поверховість будинку:
Поверх:
Квартира на 1 этаже 5-этажного кирпичного с ж/б перекрытиями дома (ул. Пластова бывшая Ив. Сергиенко). Расположена в тихом, уютном районе с развитой инфраструктурой в 15 мин. ходьбы от ст. м. «Черниговская». Общая площадь квартиры 43,0 кв. м. Комнаты смежные, санузел смежный. Квартира меблирована. Есть газовая плита. Окна выходят на чистый, зеленый двор с цветниками, деревьями, клумбами. Перед парадным широкая асфальтированная дорога. Требуется капремонт в ванной комнате. Квартира свободна и пригодна для проживания. План-схема квартиры прилагается

Mirkvartir.kiev.ua

Був онлайн 17 квітня 12:55
Немає відгуків
05.03.2026 №60605

Mirkvartir.kiev.ua

Був онлайн 17 квітня 12:55
Немає відгуків
Місцезнаходження
Пластова, 5, район Дніпровський район, Київ, Київська область, Україна
Схожі оголошення
Продаж Квартира 1-кімнатна, 4/16 поверх на вул.Тичини, 20 Київ
5 фото більше
10
Продаж Квартира 1-кімнатна, 4/16 поверх на вул.Тичини, 20
35 4 1
Київ, Дніпровський район, вул.Тичини, 20
Sion Real Estate
Сьогодні
Продаж Квартира 1-кімнатна, 21/26 поверх на вул. Шумского Юрия Київ
7 фото більше
12
Продаж Квартира 1-кімнатна, 21/26 поверх на вул. Шумского Юрия
46.8 21 1
Київ, Дніпровський район, Шумского Юрия вул.
ENTERPRISE
Сьогодні
Продаж Квартира 1-кімнатна, 4/9 поверх на Флоренции ул., 12Б Київ
7 фото більше
12
Продаж Квартира 1-кімнатна, 4/9 поверх на Флоренции ул., 12Б
32.3 4 1
Київ, Дніпровський район, Флоренции ул., 12Б
IDEAL HOME
Сьогодні
Продаж Квартира 1-кімнатна на вул. Наддніпрянське шосе Київ
9 фото більше
14
Продаж Квартира 1-кімнатна на вул. Наддніпрянське шосе
46 1
Київ, Голосіївський район, Наддніпрянське шосе вул.
ProEstate
Сьогодні
Продаж Квартира 1-кімнатна, 4/5 поверх на Тираспольская ул. Київ
15 фото більше
20
АН Княжий Дім
Вчора
Продаж Квартира 2-кімнатна, 2/8 поверх на Голосіївський вул., д. 82 Київ
9 фото більше
14
Продаж Квартира 2-кімнатна, 2/8 поверх на Голосіївський вул., д. 82
42 2 2
Київ, Голосіївський район, Голосіївський вул., д. 82
Flatprime
17 квітня
Продаж Квартира 2-кімнатна, 6/12 поверх на Антоновича вул., д. 103 Київ
6 фото більше
11
Продаж Квартира 2-кімнатна, 6/12 поверх на Антоновича вул., д. 103
81 6 2
Київ, Голосіївський район, Антоновича вул., д. 103
Flatprime
17 квітня
Продаж Квартира 4-кімнатна, 7/9 поверх на Гончара Олеся вул., д. 96 Київ 4
Продаж Квартира 4-кімнатна, 7/9 поверх на Гончара Олеся вул., д. 96
100.8 7 4
Київ, Шевченківський район, Гончара Олеся вул., д. 96
Flatprime
17 квітня
Продаж Квартира 1-кімнатна, 9/16 поверх на Заболотного Академіка вул., д. 148-В Київ
5 фото більше
10
Продаж Квартира 1-кімнатна, 9/16 поверх на Заболотного Академіка вул., д. 148-В
41.4 9 1
Київ, Голосіївський район, Заболотного Академіка вул., д. 148-В
Flatprime
17 квітня
Продаж Квартира 3-кімнатна, 2/24 поверх на Предславинська вул., д. 40 Київ
15 фото більше
20
Продаж Квартира 3-кімнатна, 2/24 поверх на Предславинська вул., д. 40
103 2 3
Київ, Печерський район, Предславинська вул., д. 40
Flatprime
17 квітня
Продаж Квартира 2-кімнатна, 1/4 поверх на Вузовська вул., д. 4 Київ
4 фото більше
9
Продаж Квартира 2-кімнатна, 1/4 поверх на Вузовська вул., д. 4
64.7 1 2
Київ, Солом'янський район, Вузовська вул., д. 4
Flatprime
17 квітня
Продаж Квартира 2-кімнатна, 9/26 поверх на Солом'янська вул., д. 20-В Київ
6 фото більше
11
Продаж Квартира 2-кімнатна, 9/26 поверх на Солом'янська вул., д. 20-В
67 9 2
Київ, Солом'янський район, Солом'янська вул., д. 20-В
Flatprime
17 квітня
Продаж Квартира 2-кімнатна, 1/9 поверх на вул. Березняковская,14 А Київ
15 фото більше
20
Продаж Квартира 2-кімнатна, 1/9 поверх на вул. Березняковская,14 А
74.5 1 2
Київ, Дніпровський район, Березняковская,14 А вул.
ENTERPRISE
17 квітня
Продаж Квартира 1-кімнатна, 17/25 поверх на Коноплянская ул., 22Б Київ 4
Продаж Квартира 1-кімнатна, 17/25 поверх на Коноплянская ул., 22Б
54.09 17 1
Київ, Оболонський район, Коноплянская ул., 22Б
IDEAL HOME
17 квітня
Продаж Квартира 2-кімнатна, 4/5 поверх на Щусева ул., 12 Київ
3 фото більше
8
Продаж Квартира 2-кімнатна, 4/5 поверх на Щусева ул., 12
44 4 2
Київ, Шевченківський район, Щусева ул., 12
IDEAL HOME
17 квітня

Продаж Квартира 2-кімнатна, 1/5 поверх на Пластова, 5 купити в Київ за ціною 1 755 772 грн. Номер пропозиції 60605 на сайті qip.ua. Квартира на 1 этаже 5-этажного кирпичного с ж/б перекрытиями дома (ул. Пластова бывшая Ив. Сергиенко). Расположена в тихом, уютном районе с развитой инфраструктурой в 15 мин. ходьбы от ст. м. «Черниговская». Общая площадь квартиры 43,0 кв. м. Комнаты смежные, санузел смежный. Квартира меблирована. Есть газовая плита. Окна выходят на чистый, зеленый двор с цветниками, деревьями, клумбами. Перед парадным широкая асфальтированная дорога. Требуется капремонт в ванной комнате. Квартира свободна и...

qip.ua - ваш надійний сайт для оренди та продажу нерухомості. Великий вибір пропозицій, найкращі ціни та перевірені агенти. Відкрийте для себе світ якісної нерухомості на qip.ua!

Повернутися наверх