Продаж торгове приміщення на вул. Героїв Крут приміщень - 4, поверх - 1/4 113 868 грн

Продаж торгове приміщення на вул. Героїв Крут приміщень - 4, поверх - 1/4

Героїв Крут вул., район Галицький, Львів, Львівська область, Україна на мапі
23.12.2025 №42665
Продаж торгове приміщення на вул. Героїв Крут приміщень - 4, поверх - 1/4 Львів - фото 1
Продаж торгове приміщення на вул. Героїв Крут приміщень - 4, поверх - 1/4 Львів - фото 2
Продаж торгове приміщення на вул. Героїв Крут приміщень - 4, поверх - 1/4 Львів - фото 3
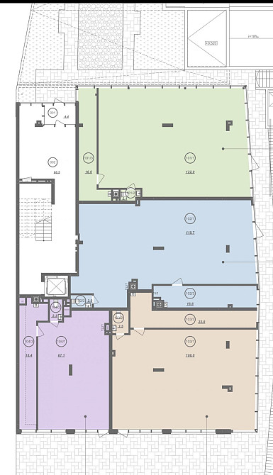
Продаж торгове приміщення на вул. Героїв Крут приміщень - 4, поверх - 1/4 Львів - фото 4
Тип об'єкта: Магазин / салон / торгова точка 
Сторона угоди: Вибрати 
Кількість приміщень:
Поверховість:
Поверх:
Загальна площа: 500 м²
ПРОДАЖ КОМЕРЦІЙНОГО ПРИМІЩЕННЯ
БЕЗ КОМІСІЇ ДЛЯ ПОКУПЦЯ

Адреса - місто Львів , вулиця Героїв Крут 15.
Загальна площа - 500 м2. Є можливість розбити на менші площі : 140 м2, 138 м2, 133.5 м2, 87.7 м2.
Поверх - 1 з 5
Кількість кімнат - чотири.
Ремонт - без ремонту .
Будинок вводиться в експлуатацію в 3 кварталі 2026 року.

Вид комерції - обʼєкти громадського харчування - кафе, ресторани, бістро, тощо / нерухомість для роздрібної торгівлі - продуктовий магазин, магазини з побутовою хімією, бутік, взуттєвий магазин,/сфера послуг - барбершоп, перукарня, салон краси, стоматологія, клініка косметології.

Комерційне приміщення чудово підійде під: салон краси, магазин, кав'ярню, квітковий магазин, перукарня, барбершоп, стоматологію, приватну клініку, кафе.

Особливості даного комерційного приміщення - приміщення розташоване в ЖК клубного типу і ми можемо підключити таку кількість кВт яка потрібна для Вашого бізнесу. Забудовник пропонує не просто комерційні приміщення, а комплексне рішення в забезпеченні постійного потоку клієнтів, адже поруч є ліцеї, школи та парк Залізна вода, а саме мікрорайон де проживає близько 40 тисяч осіб.
Поруч з будинком: університети, школи, ліцеї, дитячі садочки, продуктові магазини, нова пошта, парк «Залізна вода».

Ми надаємо повний цикл: девелопмент, дизайн проект, ремонт та подальший продаж, або професійне управління нерухомістю для задачі в оренду.

Код обʼєкта: 4804

Malinka Real Estate

Був онлайн 5 березня 11:24
Немає відгуків
23.12.2025 №42665

Malinka Real Estate

Був онлайн 5 березня 11:24
Немає відгуків
Місцезнаходження
Героїв Крут вул., район Галицький, Львів, Львівська область, Україна
Схожі оголошення
Продаж складське приміщення на вул. Городоцька приміщень - 14 Львів
10 фото більше
15
Продаж складське приміщення на вул. Городоцька приміщень - 14
Львів, Залізничний, Городоцька вул.
Malinka Real Estate
28 березня
Продаж Приміщення в житловому будинку площа 169 кв.м 1-й поверх на Пимоненка Львів
4 фото більше
9
Золота Арка
27 березня
Продаж Приміщення в житловому будинку площа 169 кв.м 1-й поверх на вул. хлібна Львів
3 фото більше
8
Золота Арка
23 березня
Продаж офісне приміщення на вул. Городоцька приміщень - 25, поверх - 1/4 Львів
8 фото більше
13
Продаж офісне приміщення на вул. Городоцька приміщень - 25, поверх - 1/4
Львів, Залізничний, Городоцька вул.
Malinka Real Estate
20 березня
Продаж комерційне приміщення на вул. Промислова Львів 1
Продаж комерційне приміщення на вул. Промислова
Львів, Шевченківський, Промислова вул.
Malinka Real Estate
18 березня
Продаж офісне приміщення на вул. Хмельницького Богдана приміщень - 1, поверх - 2/4 Львів 4
Продаж офісне приміщення на вул. Хмельницького Богдана приміщень - 1, поверх - 2/4
2 52.5 1
Львів, Шевченківський, Хмельницького Богдана вул.
Malinka Real Estate
17 березня
Продаж приміщення вільного призначення на вул. Гоголя приміщень - 10 Львів
15 фото більше
20
Malinka Real Estate
6 березня
Продаж готовий бізнес на вул. Стрийська приміщень - 10, поверх - 2/2 Львів
13 фото більше
18
Продаж готовий бізнес на вул. Стрийська приміщень - 10, поверх - 2/2
2 331 10
Львів, Сихівський, Стрийська вул.
Malinka Real Estate
4 березня
Продаж приміщення вільного призначення приміщень - 1, поверх - 1/1 Львів 3
Malinka Real Estate
4 березня
Продаж Приміщення в житловому будинку площа 516 кв.м 2-й поверх на Навроцького 31 Львів
7 фото більше
12
Приватна особа
10 березня
Продаж приміщення вільного призначення на вул. Зелена приміщень - 3, поверх - 1/2 Львів
15 фото більше
20
Malinka Real Estate
17 лютого
Продаж готовий бізнес на вул. Залізнична приміщень - 2, поверх - 1/3 Львів
2 фото більше
7
Продаж готовий бізнес на вул. Залізнична приміщень - 2, поверх - 1/3
1 32.7 2
Львів, Залізничний, Залізнична вул.
Malinka Real Estate
6 лютого
Продаж приміщення вільного призначення на вул. Хмельницького Богдана приміщень - 2, поверх - 1/3 Львів
12 фото більше
17
Продаж приміщення вільного призначення на вул. Хмельницького Богдана приміщень - 2, поверх - 1/3
1 79 2
Львів, Личаківський, Хмельницького Богдана вул.
Malinka Real Estate
5 лютого
Продаж приміщення вільного призначення на вул. Хмельницького Богдана приміщень - 4, поверх - 1/3 Львів
4 фото більше
9
Продаж приміщення вільного призначення на вул. Хмельницького Богдана приміщень - 4, поверх - 1/3
1 146 4
Львів, Личаківський, Хмельницького Богдана вул.
Malinka Real Estate
5 лютого
Останні переглянуті
Продаж приміщення вільного призначення на Дудаєва Івано-Франківськ
9 фото більше
14
Продаж приміщення вільного призначення на Дудаєва
Івано-Франківськ, Дудаєва
Житло
11 лютого
Продаж торгове приміщення на вул. Героїв Крут приміщень - 1, поверх - 1/5 Львів
4 фото більше
9
Malinka Real Estate
23 грудня 2025
Оренда торгове приміщення на Січових Стрільців вул., 13а Івано-Франківськ
8 фото більше
13
Оренда торгове приміщення на Січових Стрільців вул., 13а
400
Івано-Франківськ, Центр, Січових Стрільців вул., 13а
Житло
11 лютого

Продаж торгове приміщення на вул. Героїв Крут приміщень - 4, поверх - 1/4 купити в Львів за ціною 113 868 грн. Номер пропозиції 42665 на сайті qip.ua. ПРОДАЖ КОМЕРЦІЙНОГО ПРИМІЩЕННЯ БЕЗ КОМІСІЇ ДЛЯ ПОКУПЦЯ Адреса - місто Львів , вулиця Героїв Крут 15. Загальна площа - 500 м2. Є можливість розбити на менші площі : 140 м2, 138 м2, 133.5 м2, 87.7 м2. Поверх - 1 з 5 Кількість кімнат - чотири. Ремонт - без ремонту . Будинок вводиться в експлуатацію в 3 кварталі 2026 року. Вид комерції - обʼєкти громадського харчування - кафе, ресторани, бістро, тощо / нерухомість для роздрібної торгівлі - продуктовий магазин, магазини з побутовою хімією,...

qip.ua - ваш надійний сайт для оренди та продажу нерухомості. Великий вибір пропозицій, найкращі ціни та перевірені агенти. Відкрийте для себе світ якісної нерухомості на qip.ua!

Повернутися наверх