Оренда приміщення вільного призначення на вул. Стрийська приміщень - 7, поверх - 3/5 571 грн

Оренда приміщення вільного призначення на вул. Стрийська приміщень - 7, поверх - 3/5

Стрийська вул., район Сихівський, Львів, Львівська область, Україна на мапі
04.03.2026 №59604
Оренда приміщення вільного призначення на вул. Стрийська приміщень - 7, поверх - 3/5 Львів - фото 1
Оренда приміщення вільного призначення на вул. Стрийська приміщень - 7, поверх - 3/5 Львів - фото 2
Оренда приміщення вільного призначення на вул. Стрийська приміщень - 7, поверх - 3/5 Львів - фото 3
Оренда приміщення вільного призначення на вул. Стрийська приміщень - 7, поверх - 3/5 Львів - фото 4
Сторона угоди: Вибрати 
Кількість приміщень:
Поверховість:
Поверх:
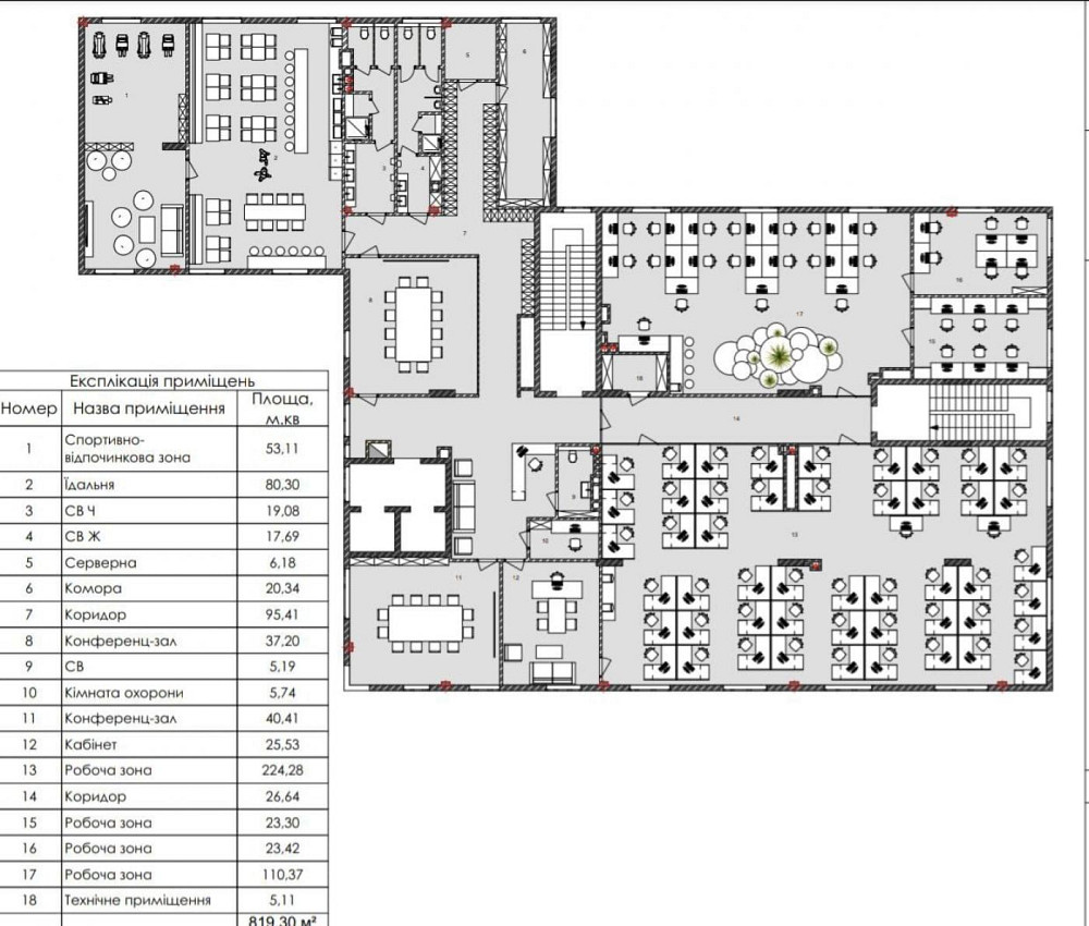
Загальна площа: 819 м²
ОРЕНДА ОФІСНИХ ПРИМІЩЕНЬ

Адреса — місто Львів, вулиця Стрийська,266.
Площа — 819 м².
Поверх — 3 з 5.
Кількість кімнат — сім.
Ремонт — євроремонт.

Вид комерції — офісні приміщення.

Особливості даного комерційного приміщення — продумане планування, зручний доїзд, приміщення розташоване в новозбудованому Бізнес центрі. Є тераса на даху, та доступні 5 паркомісць в підземному паркінгу.
Зроблений дизайнерський ремонт та наявний генератор. Є 2 типи енергоефективних опалення, а потужність електроенергії 50 кВт. Можливе розміщення від 100-120 працівників. Цілодобова охорона.

Код обʼєкта: 5197

Malinka Real Estate

Був онлайн 1 квітня 15:38
Немає відгуків
04.03.2026 №59604

Malinka Real Estate

Був онлайн 1 квітня 15:38
Немає відгуків
Місцезнаходження
Стрийська вул., район Сихівський, Львів, Львівська область, Україна
Схожі оголошення
Оренда офісне приміщення на вул. Щирецька приміщень - 4, поверх - 9/10 Львів
4 фото більше
9
Оренда офісне приміщення на вул. Щирецька приміщень - 4, поверх - 9/10
334 9
Львів, Залізничний, Щирецька вул.
Malinka Real Estate
Сьогодні
Здається Приміщення вільного призначення площа 130 кв.м 1-й поверх Львів Героїв УПА 73В Львів
9 фото більше
14
Приватна особа
9 квітня
Оренда готовий бізнес на вул. Героїв УПА приміщень - 4, поверх - 1/3 Львів
15 фото більше
20
Оренда готовий бізнес на вул. Героїв УПА приміщень - 4, поверх - 1/3
78.6 1
Львів, Залізничний, Героїв УПА вул.
Malinka Real Estate
8 квітня
Оренда офісне приміщення на вул. Уманська приміщень - 6, поверх - 5/7 Львів
9 фото більше
14
Оренда офісне приміщення на вул. Уманська приміщень - 6, поверх - 5/7
117 5
Львів, Шевченківський, Уманська вул.
Malinka Real Estate
5 квітня
Оренда офісне приміщення на вул. Уманська приміщень - 3, поверх - 3/7 Львів
5 фото більше
10
Оренда офісне приміщення на вул. Уманська приміщень - 3, поверх - 3/7
43.2 3
Львів, Шевченківський, Уманська вул.
Malinka Real Estate
5 квітня
Оренда торгове приміщення на вул. Любінська приміщень - 1, поверх - 1/9 Львів 4
Оренда торгове приміщення на вул. Любінська приміщень - 1, поверх - 1/9
112 1
Львів, Франківський, Любінська вул.
Malinka Real Estate
26 березня
Оренда офісне приміщення на вул. Зелена приміщень - 3, поверх - 2/3 Львів
8 фото більше
13
Malinka Real Estate
20 березня
Оренда приміщення вільного призначення на вул. Костомарова Миколи приміщень - 1, поверх - 1/3 Львів 5
Malinka Real Estate
20 березня
Оренда офісне приміщення на вул. Бойківська приміщень - 4, поверх - 1/7 Львів
2 фото більше
7
Оренда офісне приміщення на вул. Бойківська приміщень - 4, поверх - 1/7
217 1
Львів, Франківський, Бойківська вул.
Malinka Real Estate
14 березня
Оренда заклад громадського харчування на вул. Стрийська приміщень - 1, поверх - 1/1 Львів 5
Malinka Real Estate
7 березня
Оренда офісне приміщення на вул. В'ячеслава Чорновола приміщень - 4, поверх - 9/10 Львів
1 фото більше
6
Оренда офісне приміщення на вул. В'ячеслава Чорновола приміщень - 4, поверх - 9/10
570 9
Львів, Галицький, В'ячеслава Чорновола вул.
Malinka Real Estate
6 березня
Оренда торгове приміщення на вул. Володимира Великого приміщень - 4, поверх - 1/1 Львів
1 фото більше
6
Оренда торгове приміщення на вул. Володимира Великого приміщень - 4, поверх - 1/1
232 1
Львів, Франківський, Володимира Великого вул.
Malinka Real Estate
5 березня
Оренда офісне приміщення на вул. Буйка Петра, професора приміщень - 1, поверх - 1/1 Львів 4
Оренда офісне приміщення на вул. Буйка Петра, професора приміщень - 1, поверх - 1/1
53 1
Львів, Сихівський, Буйка Петра, професора вул.
Malinka Real Estate
5 березня
Оренда приміщення вільного призначення на вул. Стрийська приміщень - 1, поверх - 1/15 Львів
6 фото більше
11
Malinka Real Estate
5 березня
Оренда офісне приміщення на вул. Князя Романа приміщень - 1, поверх - 2/5 Львів 4
Оренда офісне приміщення на вул. Князя Романа приміщень - 1, поверх - 2/5
50 2
Львів, Галицький, Князя Романа вул.
Malinka Real Estate
4 березня
Останні переглянуті
Продаж Будинок на АН Купи Дім, 88 Кропивницький
6 фото більше
11
Купи Дім
10 листопада 2025

Оренда приміщення вільного призначення на вул. Стрийська приміщень - 7, поверх - 3/5 купити в Львів за ціною 571 грн. Номер пропозиції 59604 на сайті qip.ua. ОРЕНДА ОФІСНИХ ПРИМІЩЕНЬ Адреса — місто Львів, вулиця Стрийська,266. Площа — 819 м². Поверх — 3 з 5. Кількість кімнат — сім. Ремонт — євроремонт. Вид комерції — офісні приміщення. Особливості даного комерційного приміщення — продумане планування, зручний доїзд, приміщення розташоване в новозбудованому Бізнес центрі. Є тераса на даху, та доступні 5 паркомісць в підземному паркінгу. Зроблений дизайнерський ремонт та наявний генератор. Є 2 типи енергоефективних опалення, а потужність...

qip.ua - ваш надійний сайт для оренди та продажу нерухомості. Великий вибір пропозицій, найкращі ціни та перевірені агенти. Відкрийте для себе світ якісної нерухомості на qip.ua!

Повернутися наверх