Продаж приміщення вільного призначення на вул. Пішонівська приміщень - 1 4 939 502 грн

Продаж приміщення вільного призначення на вул. Пішонівська приміщень - 1

Пішонівська вул., район Приморський район, Одеса, Одеська область, Україна на мапі
07.10.2025 №8791
Продаж приміщення вільного призначення на вул. Пішонівська приміщень - 1 Одеса - фото 1
Продаж приміщення вільного призначення на вул. Пішонівська приміщень - 1 Одеса - фото 2
Продаж приміщення вільного призначення на вул. Пішонівська приміщень - 1 Одеса - фото 3
Продаж приміщення вільного призначення на вул. Пішонівська приміщень - 1 Одеса - фото 4
Продаж приміщення вільного призначення на вул. Пішонівська приміщень - 1 Одеса - фото 5
Продаж приміщення вільного призначення на вул. Пішонівська приміщень - 1 Одеса - фото 6
Тип об'єкта: Приміщення вільного призначення 
Сторона угоди: Вибрати 
Кількість приміщень:
Поверховість: 17 
Загальна площа: 103.71 м²
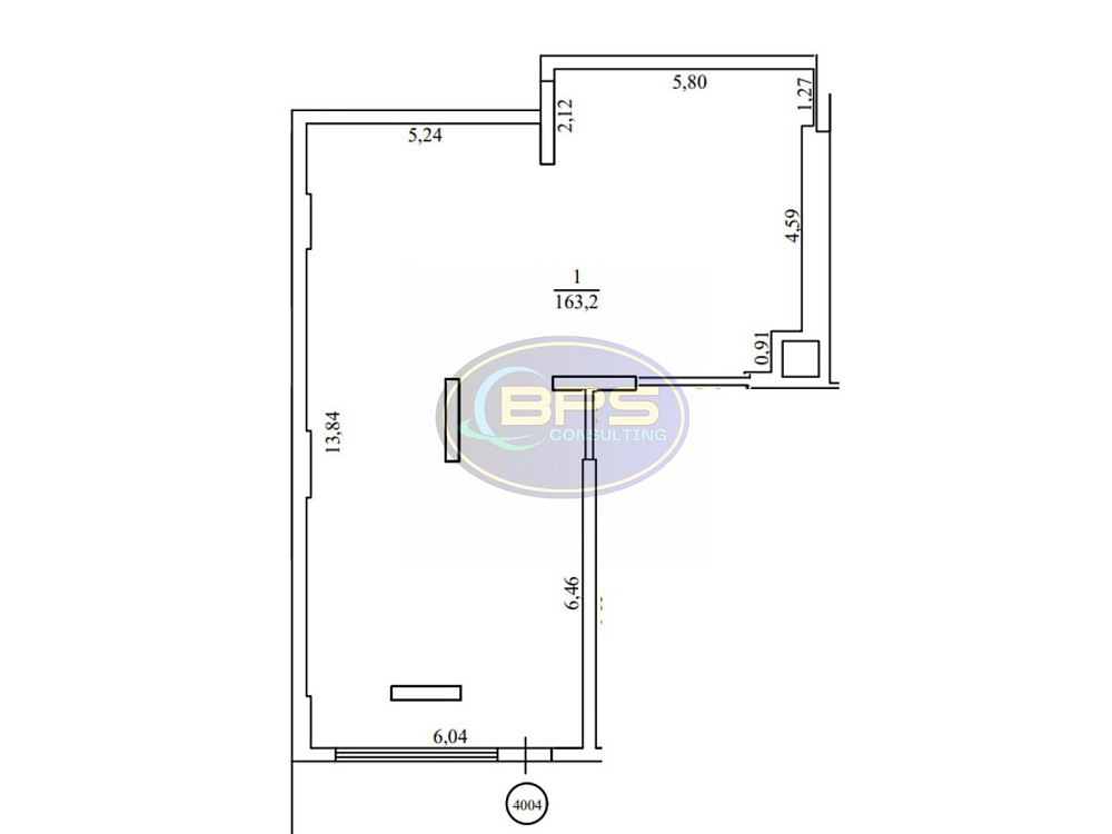
Пропонуємо до продажу нежитлове приміщення загальною площею 103,71 м², розташоване на -3 поверсі 17-поверхового житлового комплексу «Акварель 3» за адресою: Одеса, вул. Ковалевського, 22. Продаж безпосередньо від забудовника — компанії «Акварель».

Основні характеристики приміщення:

Загальна площа — 103,71 м²

Поверх — -3/17

Французьке скління

Стяжка підлоги

Розводка опалення

Можливість встановлення теплолічильника

Двері в ідеальному стані, не потребують заміни

Переваги ЖК «Акварель 3»:

Новобудова з продуманою міжквартирною шумоізоляцією

Власна керуюча компанія

Трирівневий паркінг для комфорту мешканців та гостей

Перший внесок від 10% — вигідні умови придбання

Ідеальне розташування з розвиненою інфраструктурою:

Лише 20 хвилин пішки до Дерибасівської — центру Одеси та культури міста

Поблизу навчальні заклади, школа, дитячий садок

Лікарня, аптеки та медичні заклади

Торгові центри, ринки, магазини

Затишні паркові зони для відпочинку

Зручна транспортна розв’язка

Наземний і багаторівневий паркінг

Відмінний вибір для розвитку бізнесу:

Магазини та бутіки

Офіси, студії, салони краси

Кафе, ресторани, заклади дозвілля

Дата введення в експлуатацію — 2 квартал 2025 року.
Це унікальна можливість придбати комерційну нерухомість у престижному житловому комплексі з усіма сучасними зручностями та розвиненою інфраструктурою в серці Одеси.

BPS Consulting

Був онлайн 19 лютого 11:41
Немає відгуків
07.10.2025 №8791

BPS Consulting

Був онлайн 19 лютого 11:41
Немає відгуків
Місцезнаходження
Пішонівська вул., район Приморський район, Одеса, Одеська область, Україна
Схожі оголошення
Продаж комерційне приміщення на ул. Нежинская, 66 приміщень - 3, поверх - 1 Одеса
2 фото більше
7
Продаж комерційне приміщення на ул. Нежинская, 66 приміщень - 3, поверх - 1
Одеса, Приморський район, ул. Нежинская, 66
ТВ Дом - Лідер
22 лютого
Продаж комерційне приміщення на ул. Ольгиевская, 37 приміщень - 2, поверх - 1 Одеса 4
Продаж комерційне приміщення на ул. Ольгиевская, 37 приміщень - 2, поверх - 1
1 49.7 2
Одеса, Приморський район, ул. Ольгиевская, 37
ТВ Дом - Лідер
21 лютого
Продаж комерційне приміщення на ул. Новосельского, 43 приміщень - 3, поверх - 1 Одеса 4
Продаж комерційне приміщення на ул. Новосельского, 43 приміщень - 3, поверх - 1
1 56 3
Одеса, Приморський район, ул. Новосельского, 43
ТВ Дом - Лідер
21 лютого
Продаж комерційне приміщення на ул. Дегтярная, 11 приміщень - 2, поверх - 1 Одеса
4 фото більше
9
Продаж комерційне приміщення на ул. Дегтярная, 11 приміщень - 2, поверх - 1
1 72.6 2
Одеса, Приморський район, ул. Дегтярная, 11
ТВ Дом - Лідер
20 лютого
Продаж складське приміщення на вул. Мельницька Одеса 4
Продаж складське приміщення на вул. Мельницька
3500
Одеса, Мельницька вул.
Best House
18 лютого
Продаж приміщення вільного призначення на Конная ул. поверх - 3 Одеса
15 фото більше
20
Продаж приміщення вільного призначення на Конная ул. поверх - 3
3 412
Одеса, Приморський район, Конная ул.
Best House
18 лютого
Продаж торгове приміщення на Канатная ул., 75 поверх - 1/4 Одеса
7 фото більше
12
Продаж торгове приміщення на Канатная ул., 75 поверх - 1/4
1 85
Одеса, Приморський район, Канатная ул., 75
Best House
18 лютого
Продаж торгове приміщення на вул. Мельницька поверх - 1/1 Одеса 4
Продаж торгове приміщення на вул. Мельницька поверх - 1/1
1 3500
Одеса, Мельницька вул.
Best House
18 лютого
Продаж торгове приміщення на вул. Львівська поверх - 2/2 Одеса
15 фото більше
20
Продаж торгове приміщення на вул. Львівська поверх - 2/2
2 400
Одеса, Київський район, Львівська вул.
Best House
18 лютого
Продаж торгове приміщення на Морская вул., 8а поверх - 1/12 Одеса
15 фото більше
20
Продаж торгове приміщення на Морская вул., 8а поверх - 1/12
1 60
Одеса, Приморський район, Морская вул., 8а
Best House
18 лютого
Продаж торгове приміщення на Ланжероновская ул., 17 поверх - 1/2 Одеса
10 фото більше
15
Продаж торгове приміщення на Ланжероновская ул., 17 поверх - 1/2
1 588
Одеса, Приморський район, Ланжероновская ул., 17
Best House
18 лютого
Продаж приміщення вільного призначення на Ланжероновская ул., 26 поверх - 1/3 Одеса
5 фото більше
10
Продаж приміщення вільного призначення на Ланжероновская ул., 26 поверх - 1/3
1 142
Одеса, Приморський район, Ланжероновская ул., 26
Best House
18 лютого
Продаж торгове приміщення на Большой Фонтан / Фонтанская Дорога Одеса
3 фото більше
8
Продаж торгове приміщення на Большой Фонтан / Фонтанская Дорога
Одеса, Київський район, Большой Фонтан / Фонтанская Дорога
Best House
18 лютого
Продаж торгове приміщення на Одария ул., 12 поверх - 1/2 Одеса
1 фото більше
6
Best House
18 лютого

Продаж приміщення вільного призначення на вул. Пішонівська приміщень - 1 купити в Одеса за ціною 4 939 502 грн. Номер пропозиції 8791 на сайті qip.ua. Пропонуємо до продажу нежитлове приміщення загальною площею 103,71 м², розташоване на -3 поверсі 17-поверхового житлового комплексу «Акварель 3» за адресою: Одеса, вул. Ковалевського, 22. Продаж безпосередньо від забудовника — компанії «Акварель». Основні характеристики приміщення: Загальна площа — 103,71 м² Поверх — -3/17 Французьке скління Стяжка підлоги Розводка опалення Можливість встановлення теплолічильника Двері в ідеальному стані, не потребують заміни Переваги ЖК «Акварель...

qip.ua - ваш надійний сайт для оренди та продажу нерухомості. Великий вибір пропозицій, найкращі ціни та перевірені агенти. Відкрийте для себе світ якісної нерухомості на qip.ua!

Повернутися наверх