Продам 5 комнат в коммунальной квартире. 2 103 625 грн

Продам 5 комнат в коммунальной квартире.

ул. Академика Воробьева, 20в, Одеса, Одеська область, Україна на мапі
Сьогодні №20092
Продам 5 комнат в коммунальной квартире. Одеса - фото 1
Сторона угоди: Вибрати 
Параметри
Тип об'єкта: Квартира 
Кількість кімнат:
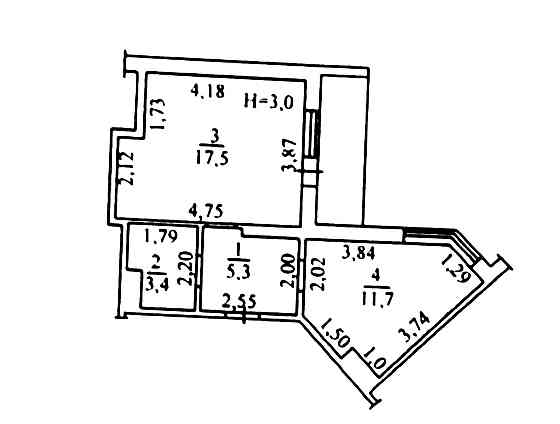
Загальна площа: 100 м²
Житлова площа: 80 м²
Площа кухні: 15 м²
Поверх:
Продам 5 комнат в коммунальной квартире.
Общежитие на Воробъёва.
ID 42201

ТВ Дом - Лідер

Був онлайн вчора 11:11
Немає відгуків
Сьогодні №20092
2 103 625 грн
Зворотний дзвінок Повідомлення Контакти

ТВ Дом - Лідер

Був онлайн вчора 11:11
Немає відгуків
Місцезнаходження
ул. Академика Воробьева, 20в, Одеса, Одеська область, Україна
Схожі оголошення

Продам 5 комнат в коммунальной квартире. купити в Одеса за ціною 2 103 625 грн. Номер пропозиції 20092 на сайті qip.ua. Продам 5 комнат в коммунальной квартире. Общежитие на Воробъёва. ID 42201

qip.ua - ваш надійний сайт для оренди та продажу нерухомості. Великий вибір пропозицій, найкращі ціни та перевірені агенти. Відкрийте для себе світ якісної нерухомості на qip.ua!

Повернутися наверх