Продажа 3к Квартира 92 кв.м Проспект Бандери 3 629 480 грн

Продажа 3к Квартира 92 кв.м Проспект Бандери

Проспект Бандери, район Северный, Тернополь, Тернопольская область, Украина на карте
11.01.2026 №45310
Продажа 3к Квартира 92 кв.м Проспект Бандери Тернополь - изображение 1
Продажа 3к Квартира 92 кв.м Проспект Бандери Тернополь - изображение 2
Продажа 3к Квартира 92 кв.м Проспект Бандери Тернополь - изображение 3
Продажа 3к Квартира 92 кв.м Проспект Бандери Тернополь - изображение 4
Продажа 3к Квартира 92 кв.м Проспект Бандери Тернополь - изображение 5
Продажа 3к Квартира 92 кв.м Проспект Бандери Тернополь - изображение 6
Продажа 3к Квартира 92 кв.м Проспект Бандери Тернополь - изображение 7
Продажа 3к Квартира 92 кв.м Проспект Бандери Тернополь - изображение 8
Продажа 3к Квартира 92 кв.м Проспект Бандери Тернополь - изображение 9
Сторона сделки: Посредник 
Комиссия от сделки: Да 
Размер комиссии: 3 %
Параметры
Тип обьекта: Квартира 
Количество комнат:
Тип недвижимости: Первичная недвижимость 
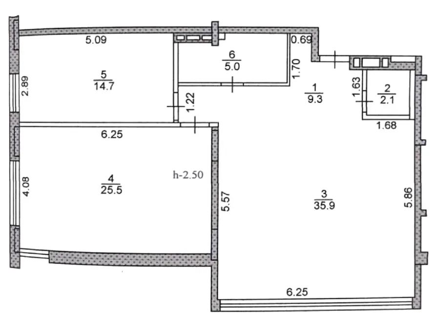
Общая площадь: 92 м²
Жилая площадь: 70 м²
Площадь кухни: 12 м²
Ремонт: Черновая штукатурка 
Мебель и техника: Нет 
Про дом
Год постройки: 2020 
Тип дома: Жилой фонд 2001-2010 гг. 
Этажность дома: 10 
Этаж:
Тип стен: Пеноблок 
Утепление: Внешнее 
Санузел
Раздельный
Коммуникации
Газ Электричество Вывоз отходов
Индивидуальные счетчики
На электричество На газ На воду
Безопасность
Сигнализация кодовый замок домофон
Отопление
Двухконтурный котел Индивидуальное газовое
Дві кімнати та велика кухня-студія. Вже проведено індивідуальне опалення та встановлено теплу підлогу по всій квартирі. Зроблена вся електрика, сантехніка та поштукатурені стіни. Все підготовлено до встановлення кондиціонерів в залі і спальні. Вікна від забудовника замінені на якісні (шестикамерні). Вигляд із вікон на центр міста, стадіон та двір. На території комплексу підземний паркінг, супермаркет, салони краси, медичні клініки, тощо.

Наталія

Был онлайн 24 февраля 14:22
Нет отзывов
Зарегистрируйтесь или авторизуйтесь чтобы оставить комментарий.
Пока нет ни одного отзыва.
11.01.2026 №45310

Наталія

Был онлайн 24 февраля 14:22
Нет отзывов
Расположение
Проспект Бандери, район Северный, Тернополь, Тернопольская область, Украина
Похожие объявления
Продаж Квартира 1-кімнатна, 9/10 поверх Тернополь
ещё 1 фото
6
Продаж Квартира 1-кімнатна, 9/10 поверх
Тернополь, Бам
Агенція нерухомості "ВІСОН"
Сегодня
Продаж Квартира 1-кімнатна, 8/9 поверх Тернополь 5
Продаж Квартира 1-кімнатна, 8/9 поверх
Тернополь, Сахарный завод
Агенція нерухомості "ВІСОН"
Сегодня
Продаж Квартира 3-кімнатна, 11/11 поверх Тернополь
ещё 15 фото
20
Продаж Квартира 3-кімнатна, 11/11 поверх
Тернополь, Бам
Агенція нерухомості "ВІСОН"
Сегодня
Продаж Квартира 4-кімнатна, 2/12 поверх Тернополь
ещё 15 фото
20
Продаж Квартира 4-кімнатна, 2/12 поверх
Тернополь, Бам
Агенція нерухомості "ВІСОН"
Сегодня
Продаж Квартира 2-кімнатна, 1/9 поверх на вул. Микулинецька Тернополь
ещё 1 фото
6
Продаж Квартира 2-кімнатна, 1/9 поверх на вул. Микулинецька
Тернополь, Сахарный завод, Микулинецька вул.
Агенція нерухомості "ВІСОН"
Сегодня
Продаж Квартира 1-кімнатна, 1/9 поверх Тернополь
ещё 1 фото
6
Продаж Квартира 1-кімнатна, 1/9 поверх
Тернополь, Бам
Агенція нерухомості "ВІСОН"
Сегодня
Продаж Квартира 2-кімнатна, 2/2 поверх на вул. Олени Теліги Тернополь
ещё 6 фото
11
Продаж Квартира 2-кімнатна, 2/2 поверх на вул. Олени Теліги
Тернополь, Новый свет, Олени Теліги вул.
Агенція нерухомості "ВІСОН"
Сегодня
Продаж Квартира 1-кімнатна, 3/10 поверх на Микулинецька Тернополь
ещё 6 фото
11
Продаж Квартира 1-кімнатна, 3/10 поверх на Микулинецька
41.2 3 1
Тернополь, Микулинецька
ВНУк - Вся Нерухомість України
25 февраля
Продаж Квартира 1-кімнатна, 5/13 поверх на вул. Тарнавського Генерала Тернополь
ещё 2 фото
7
Продаж Квартира 1-кімнатна, 5/13 поверх на вул. Тарнавського Генерала
45 5 1
Тернополь, Бам, Тарнавського Генерала вул.
Агенція нерухомості "ВІСОН"
25 февраля
Продаж Квартира 1-кімнатна, 8/9 поверх на вул. Довженка О. Тернополь
ещё 5 фото
10
Продаж Квартира 1-кімнатна, 8/9 поверх на вул. Довженка О.
51 8 1
Тернополь, Восточный, Довженка О. вул.
Агенція нерухомості "ВІСОН"
24 февраля
Продаж Квартира 1-кімнатна, 3/10 поверх Тернополь
ещё 6 фото
11
Продаж Квартира 1-кімнатна, 3/10 поверх
41 3 1
Тернополь, Бам
Агенція нерухомості "ВІСОН"
24 февраля
Продаж Квартира 1-кімнатна, 11/11 поверх Тернополь
ещё 8 фото
13
Продаж Квартира 1-кімнатна, 11/11 поверх
46 11 1
Тернополь, Бам
Агенція нерухомості "ВІСОН"
24 февраля
Продаж Квартира 2-кімнатна, 8/10 поверх Тернополь
ещё 3 фото
8
Продаж Квартира 2-кімнатна, 8/10 поверх
67 8 2
Тернополь, Дружба
Агенція нерухомості "ВІСОН"
24 февраля
Продаж Квартира 1-кімнатна, 2/7 поверх Тернополь
ещё 3 фото
8
Продаж Квартира 1-кімнатна, 2/7 поверх
59 2 1
Тернополь, Центр
Агенція нерухомості "ВІСОН"
24 февраля
Продажа 2к Квартира 71 кв.м Бережанська Тернополь
ещё 11 фото
16
Продажа 2к Квартира 71 кв.м Бережанська
71 1 2
Тернополь, Дружба, Бережанська
Частное лицо
23 февраля
Последние просмотренные
Продаж Квартира 1-кімнатна, 2/3 поверх Ивано-Франковск
ещё 1 фото
6
Продаж Квартира 1-кімнатна, 2/3 поверх
Ивано-Франковск, Центр
ВНУк - Вся Нерухомість України
12 января

Продажа 3к Квартира 92 кв.м Проспект Бандери купить в Тернополь по цене 3 629 480 грн. Номер предложения 45310 на сайте qip.ua. Дві кімнати та велика кухня-студія. Вже проведено індивідуальне опалення та встановлено теплу підлогу по всій квартирі. Зроблена вся електрика, сантехніка та поштукатурені стіни. Все підготовлено до встановлення кондиціонерів в залі і спальні. Вікна від забудовника замінені на якісні (шестикамерні). Вигляд із вікон на центр міста, стадіон та двір. На території комплексу підземний паркінг, супермаркет, салони краси, медичні клініки, тощо.

qip.ua - ваш надежный сайт для аренды и продажи недвижимости. Большой выбор предложений, лучшие цены и проверенные агенты. Откройте для себя мир качественной недвижимости на qip.ua!

Наверх