Продаж Будинок 92 000 $

Продаж Будинок

02.12.2025 №28164
Продаж Будинок  - фото 1
Продаж Будинок  - фото 2
Продаж Будинок  - фото 3
Продаж Будинок  - фото 4
Продаж Будинок  - фото 5
Продаж Будинок  - фото 6
Продаж Будинок  - фото 7
Сторона угоди: Вибрати 
Тип об'єкта: Будинок 
Кількість поверхів:
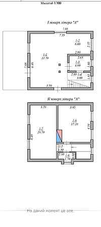
Загальна площа: 122 м²
Площа ділянки: 2 соток
Таунхаус Сторожниця

7 таунхаусів
Будуть готові початок вересня.
Загальна площа 122 кв.м.,2 поверхи,3 окремі спальні, 2 санвузли, кухня з холом та виходом на власну терасу.
Загальна площа ділянки 2 сотки.
Є можливість планування по індивідуальному проекту.
Будинок цегляний, утеплений мінватою, перекриття моноліт. Вікна енергозберігаючі. Підведено електрики 20 кВт , власна скважина та каналізація( самоочисна система).
Власний огороджений дворик позаду будинку,та 2 паркомісця
• Характеристика будівлі: стан будинку: дизайнерське оформлення • перекриття: залізобетонне
• Характеристика приміщення: утеплення: зовнішнє
• Підлога (покриття): моноліт
• Внутрішнє оздоблення: чистова штукатурка
• Зовнішня обробка: декоративна штукатурка
• Комунікації: електрика в будинку -100 точок(укладання кабелю) • каналізація: септик • Телебачення: кабельне • інтернет: Wi-Fi
• Вода: свердловина
• Двері та вікна: вхідні двері: броньовані • тип вікон: металопластикові енергозберігаючі
• Підігрів води: проведено під бойлер
• Опалення: індивідуальне електричне(перший поверх проведено полове опалення ,другий поверх прокладені труби під радіатори, санвузел другого поверху- проведено полове опалення)
• лічильник на електрику
• На території тротуарна плитка • стоянка для автівок відкрита • ворота: автоматичні
• Характеристика ділянки: Розташування: в котеджному містечку • рельєф: рівнинний

АН MY RIELTOR

Був онлайн 2 грудня 2025 15:25
Немає відгуків
02.12.2025 №28164

АН MY RIELTOR

Був онлайн 2 грудня 2025 15:25
Немає відгуків
Схожі оголошення
Продаж Будинок 3-кімнатний Київ
15 фото більше
20
Продаж Будинок 3-кімнатний
Київ, Солом'янський район
IDEAL HOME
Сьогодні
Продаж Будинок 3-кімнатний Київ
2 фото більше
7
Продаж Будинок 3-кімнатний
Київ, Подільський район
IDEAL HOME
Сьогодні
Продаж Будинок 4-кімнатний Київ 5
Продаж Будинок 4-кімнатний
Київ, Шевченківський район
IDEAL HOME
Сьогодні
Продаж Будинок 5-кімнатний на Лесная ул., 1 Хотянівка
13 фото більше
18
Продаж Будинок 5-кімнатний на Лесная ул., 1
Хотянівка, Лесная ул., 1
IDEAL HOME
Сьогодні
Продаж 2-поверховий Будинок з ділянкою 6 сот 198 кв.м 3 кімн. на ЛЕВИТАНА Одеса
5 фото більше
10
Приватна особа
Сьогодні
Продаж 2-поверховий Будинок з ділянкою 4 сот 228 кв.м 5 кімн. на злаковая Одеса
11 фото більше
16
Приватна особа
Сьогодні
Продаж Будинок на Бежівка Бориспіль
4 фото більше
9
Продаж Будинок на Бежівка
Бориспіль, Бежівка
АН ПроДім
Сьогодні
Продаж Будинок на Межева сад Івано-Франківськ
9 фото більше
14
Продаж Будинок на Межева сад
Івано-Франківськ, Межева сад
Житло
Сьогодні
Продаж Будинок на вул. Зелена Івано-Франківськ
15 фото більше
20
Продаж Будинок на вул. Зелена
Івано-Франківськ, Майзлі, Зелена вул.
Житло
Сьогодні
Продаж 2-поверховий Будинок з ділянкою 3 сот 130 кв.м 4 кімн. на ЛИТОВСКАЯ Одеса
5 фото більше
10
Приватна особа
Сьогодні
Продаж Будинок Львів
15 фото більше
20
Продаж Будинок
Львів
АН "RealtyGroup"
Сьогодні
Продаж Будинок 2-кімнатний на ул. 8 Марта 1-я линия, 2 Одеса
9 фото більше
14
Продаж Будинок 2-кімнатний на ул. 8 Марта 1-я линия, 2
Одеса, ул. 8 Марта 1-я линия, 2
ТВ Дом - Лідер
Сьогодні
Продаж 2-поверховий Будинок з ділянкою 10 сот 390 кв.м 5 кімн. на вулиця Академіка Заболотного, 11 Одеса
5 фото більше
10
Приватна особа
Вчора
Продаж 2-поверховий Будинок з ділянкою 9 сот 100 кв.м 3 кімн. на JRPP+CQ, Лиманський район, Одеська область, 67513 Одеса
4 фото більше
9
Продаж 2-поверховий Будинок з ділянкою 9 сот 100 кв.м 3 кімн. на JRPP+CQ, Лиманський район, Одеська область, 67513
3 100 2
Одеса, Селище Котовського, JRPP+CQ, Лиманський район, Одеська область, 67513
Приватна особа
Сьогодні
Останні переглянуті
Продаж Будинок
5 фото більше
10
АН Княжий Дім
26 лютого
Продаж Будинок
6 фото більше
11
ПЕРША АГЕНЦІЯ НЕРУХОМОСТІ
19 грудня 2025
Оренда Будинок Рославичі
8 фото більше
13
Оренда Будинок
270 3
Рославичі
АН Княжий Дім
26 лютого
Продаж Будинок Ужгород
15 фото більше
20
Продаж Будинок
Ужгород, Садовий
АН MY RIELTOR
2 грудня 2025
Продаж Будинок
14 фото більше
19
Продаж Будинок
69.5 1
АН MY RIELTOR
2 грудня 2025
Продаж Будинок
3 фото більше
8
АН Княжий Дім
26 лютого
Продаж Будинок Ужгород
15 фото більше
20
Продаж Будинок
Ужгород, Радванка
АН MY RIELTOR
2 грудня 2025

Продаж Будинок купити в за ціною 92 000 $. Номер пропозиції 28164 на сайті qip.ua. Таунхаус Сторожниця 7 таунхаусів Будуть готові початок вересня. Загальна площа 122 кв.м.,2 поверхи,3 окремі спальні, 2 санвузли, кухня з холом та виходом на власну терасу. Загальна площа ділянки 2 сотки. Є можливість планування по індивідуальному проекту. Будинок цегляний, утеплений мінватою, перекриття моноліт. Вікна енергозберігаючі. Підведено електрики 20 кВт , власна скважина та каналізація( самоочисна система). Власний огороджений дворик позаду будинку,та 2 паркомісця •...

qip.ua - ваш надійний сайт для оренди та продажу нерухомості. Великий вибір пропозицій, найкращі ціни та перевірені агенти. Відкрийте для себе світ якісної нерухомості на qip.ua!

Повернутися наверх