Продаж Будинок 1-кімнатний на Мукачівська вул., 44 52 150 грн

Продаж Будинок 1-кімнатний на Мукачівська вул., 44

Мукачівська вул., 44, Ужгород, Закарпатська область, Україна на мапі
10.04.2026 №67449
Продаж Будинок 1-кімнатний на Мукачівська вул., 44 Ужгород - фото 1
Продаж Будинок 1-кімнатний на Мукачівська вул., 44 Ужгород - фото 2
Продаж Будинок 1-кімнатний на Мукачівська вул., 44 Ужгород - фото 3
Продаж Будинок 1-кімнатний на Мукачівська вул., 44 Ужгород - фото 4
Продаж Будинок 1-кімнатний на Мукачівська вул., 44 Ужгород - фото 5
Продаж Будинок 1-кімнатний на Мукачівська вул., 44 Ужгород - фото 6
Сторона угоди: Вибрати 
Кімнат:
Кількість поверхів:
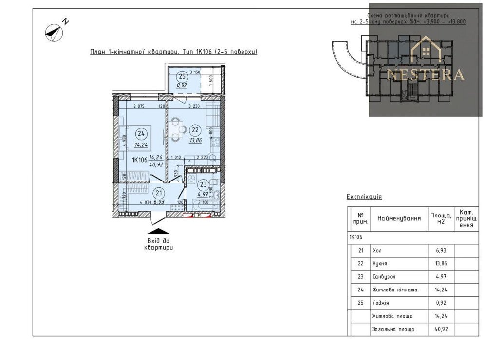
Загальна площа: 40.92 м²
Житлова площа: 14.24 м²
Площа кухні: 13.86 м²
Пропонується до продажу 1-кімнатна квартира (поверхи 2-5) в сучасному ЖК 44 Avenue — першому комплексі з сонячними панелями та повною автономністю.

Основні переваги комплексу:
• Бізнес-клас, 2 будинки по 7 поверхів
• Автономне індивідуальне опалення в кожній квартирі
• Сонячні панелі та резервне живлення
• Монолітно-каркасна технологія, стіни — цегла
• Високі стелі 3.05 м, які дають відчуття простору
• Закрита територія, концепція «двір без авто»
• Підземний паркінг (є зарядки для електрокарів)
• Сховище в паркінгу, облаштоване за всіма нормами
• Ландшафтний дизайн, дитячий майданчик, зони відпочинку
• Підтримка системи «розумний дім»

Фінансові умови:
• Базова ціна — від 1200 $/м2
• Знижки:
10% при 100% оплаті,
7% при 70%,
5% при 50%
• Додаткові: 3% (ВСУ/ВПО/сім’ї героїв), 2% (медики)
• Розтермінування на 24 місяці без подорожчання, перший внесок — від 30%
• Щомісячні або поквартальні платежі
• Ціна фіксована в доларах


Ідеальний варіант для тих, хто шукає сучасний, автономний і безпечний дім у центральному районі.

БЕЗ КОМІСІЇ!

Телефонуйте за деталями!

Nestera

Був онлайн 6 січня 11:01
Немає відгуків
10.04.2026 №67449

Nestera

Був онлайн 6 січня 11:01
Немає відгуків
Місцезнаходження
Мукачівська вул., 44, Ужгород, Закарпатська область, Україна
Схожі оголошення
Продаж Будинок Ужгород 4
Продаж Будинок
Ужгород
Nestera
Вчора
Продаж Будинок на вул. Гончара Ужгород
3 фото більше
8
Продаж Будинок на вул. Гончара
Ужгород, Гончара вул.
Nestera
Вчора
Продаж Будинок на Капушанська вул., 78 Ужгород
2 фото більше
7
Продаж Будинок на Капушанська вул., 78
Ужгород, Капушанська вул., 78
Nestera
Вчора
Продаж Будинок на вул. Запорізька Ужгород 4
Продаж Будинок на вул. Запорізька
Ужгород, Запорізька вул.
Nestera
Вчора
Продаж Будинок на вул. Берегівська Ужгород
4 фото більше
9
Продаж Будинок на вул. Берегівська
Ужгород, Берегівська вул.
Nestera
Вчора
Продаж Будинок на вул. Свалявська Ужгород
7 фото більше
12
Продаж Будинок на вул. Свалявська
Ужгород, Свалявська вул.
Nestera
Вчора
Продаж Будинок 15-кімнатний на Сечені вул., 29А Ужгород 3
Продаж Будинок 15-кімнатний на Сечені вул., 29А
7+ 170 9
Ужгород, Сечені вул., 29А
Nestera
Вчора
Продаж Будинок 1-кімнатний на Докучаєва вул., 1 Ужгород
3 фото більше
8
Продаж Будинок 1-кімнатний на Докучаєва вул., 1
1 228.2 1
Ужгород, Докучаєва вул., 1
Nestera
Вчора
Продаж Будинок на вул. Героїв 128-ї Бригади Ужгород
5 фото більше
10
Продаж Будинок на вул. Героїв 128-ї Бригади
620 2
Ужгород, Героїв 128-ї Бригади вул.
Nestera
Вчора
Продаж Будинок 1-кімнатний на вул. Другетів Ужгород 5
Продаж Будинок 1-кімнатний на вул. Другетів
1 819.45 8
Ужгород, Другетів вул.
Nestera
Вчора
Продаж Будинок 1-кімнатний на вул. Другетів Ужгород
1 фото більше
6
Продаж Будинок 1-кімнатний на вул. Другетів
1 334.69 8
Ужгород, Другетів вул.
Nestera
Вчора
Продаж Будинок 2-кімнатний на Загорська вул., 122 Ужгород
15 фото більше
20
Продаж Будинок 2-кімнатний на Загорська вул., 122
2 125 1
Ужгород, Загорська вул., 122
Nestera
Вчора
Продаж Будинок 2-кімнатний на вул. Василя Гаджеги Ужгород
9 фото більше
14
Продаж Будинок 2-кімнатний на вул. Василя Гаджеги
2 50 1
Ужгород, Василя Гаджеги вул.
Nestera
Вчора
Продаж Будинок на Об'їздна вул., 26 Ужгород
15 фото більше
20
Продаж Будинок на Об'їздна вул., 26
2000
Ужгород, Об'їздна вул., 26
Nestera
Вчора
Продаж Будинок 4-кімнатний на Стрільнична вул., 60 Ужгород
15 фото більше
20
Продаж Будинок 4-кімнатний на Стрільнична вул., 60
4 165 2
Ужгород, Стрільнична вул., 60
Nestera
Вчора
Останні переглянуті
Продаж Будинок 3-кімнатний на Загорська вул., 200 Ужгород
1 фото більше
6
Продаж Будинок 3-кімнатний на Загорська вул., 200
3 103.7 2
Ужгород, Загорська вул., 200
Nestera
Вчора
Продаж Будинок 5-кімнатний на Глибока вул., 19 Ужгород
15 фото більше
20
Продаж Будинок 5-кімнатний на Глибока вул., 19
5 400 2
Ужгород, Глибока вул., 19
Nestera
Вчора
Продаж земельної ділянки 12 соток на вул. Перемоги Сторожниця
5 фото більше
10
Продаж земельної ділянки 12 соток на вул. Перемоги
12
Сторожниця, Перемоги вул.
Nestera
Вчора

Продаж Будинок 1-кімнатний на Мукачівська вул., 44 купити в Ужгород за ціною 52 150 грн. Номер пропозиції 67449 на сайті qip.ua. Пропонується до продажу 1-кімнатна квартира (поверхи 2-5) в сучасному ЖК 44 Avenue — першому комплексі з сонячними панелями та повною автономністю. Основні переваги комплексу: • Бізнес-клас, 2 будинки по 7 поверхів • Автономне індивідуальне опалення в кожній квартирі • Сонячні панелі та резервне живлення • Монолітно-каркасна технологія, стіни — цегла • Високі стелі 3.05 м, які дають відчуття простору • Закрита територія, концепція «двір без авто» • Підземний паркінг (є зарядки для...

qip.ua - ваш надійний сайт для оренди та продажу нерухомості. Великий вибір пропозицій, найкращі ціни та перевірені агенти. Відкрийте для себе світ якісної нерухомості на qip.ua!

Повернутися наверх