Оренда торгове приміщення на Немировское шоссе поверх - 1/10 8 930 грн

Оренда торгове приміщення на Немировское шоссе поверх - 1/10

Немировское шоссе, район Дальнє замостя, Вінниця, Вінницька область, Україна
18.12.2025 №41187
Оренда торгове приміщення на Немировское шоссе поверх - 1/10 Вінниця - фото 1
Оренда торгове приміщення на Немировское шоссе поверх - 1/10 Вінниця - фото 2
Оренда торгове приміщення на Немировское шоссе поверх - 1/10 Вінниця - фото 3
Оренда торгове приміщення на Немировское шоссе поверх - 1/10 Вінниця - фото 4
Оренда торгове приміщення на Немировское шоссе поверх - 1/10 Вінниця - фото 5
Тип об'єкта: Магазин / салон / торгова точка 
Сторона угоди: Вибрати 
Поверховість: 10 
Поверх:
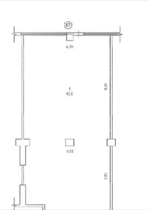
Загальна площа: 89.3 м²
Здається приміщення вільного призначення на довгострокову оренду в новому мікрорайоні ЖК Сімейний Комфорт. Можливі канікули по орендній платі до 4-х місяців.
Два суміжні приміщення на загальну площу 181, 9 м.кв. ( 1-ше 89, 3 м.кв.та 2-ге 92.6 м.кв.) Поруч наявний паркувальний майданчик, продуктовий магазин 24/7, гарне транспортне сполучення маршрути №19, №30 А, № 30 Б. Поруч Нова пошта, автосалони.

Авант

Був онлайн 16 лютого 13:10
Немає відгуків
18.12.2025 №41187

Авант

Був онлайн 16 лютого 13:10
Немає відгуків
Схожі оголошення
Оренда офісне приміщення на Космонавтів Вінниця 4
Оренда офісне приміщення на Космонавтів
Вінниця, Вишенька, Космонавтів
Авант
10 березня
Оренда приміщення вільного призначення на Новаківського Олекси Вінниця
4 фото більше
9
Авант
9 березня
Оренда офісне приміщення на пр-т Коцюбинського Вінниця 4
Оренда офісне приміщення на пр-т Коцюбинського
12
Вінниця, Ближнє замостя, пр-т Коцюбинського
Авант
6 березня
Оренда офісне приміщення на Келецька Вінниця 3
Оренда офісне приміщення на Келецька
17
Вінниця, Вишенька, Келецька
Авант
5 березня
Оренда приміщення вільного призначення Вінниця 4
Оренда приміщення вільного призначення
20
Вінниця, Київська
Авант
4 березня
Оренда офісне приміщення на Коцюбинського Вінниця 3
Оренда офісне приміщення на Коцюбинського
13
Вінниця, Коцюбинського
Авант
4 березня
Оренда торгове приміщення на Зодчих поверх - 1 Вінниця
7 фото більше
12
Оренда торгове приміщення на Зодчих поверх - 1
Вінниця, Поділля, Зодчих
Авант
3 березня
Оренда торгове приміщення на Пирогова поверх - 1 Вінниця 3
Оренда торгове приміщення на Пирогова поверх - 1
Вінниця, Поділля, Пирогова
Авант
3 березня
Оренда офісне приміщення на Соборна Вінниця
5 фото більше
10
Оренда офісне приміщення на Соборна
61
Вінниця, Центр, Соборна
Авант
23 лютого
Оренда приміщення вільного призначення на Праведників Світу (Максимовича) Вінниця
3 фото більше
8
Оренда приміщення вільного призначення на Праведників Світу (Максимовича)
145
Вінниця, Корея, Праведників Світу (Максимовича)
Авант
17 лютого
Оренда приміщення вільного призначення на Скалецького Вінниця
15 фото більше
20
Оренда приміщення вільного призначення на Скалецького
200
Вінниця, Урожай, Скалецького
Авант
17 лютого
Оренда приміщення вільного призначення Вінниця 5
Оренда приміщення вільного призначення
600
Вінниця, Сабарів
Авант
11 лютого
Оренда приміщення вільного призначення на Келецька, 126А поверх - 1/1 Вінниця 3
Авант
3 лютого
Оренда приміщення вільного призначення Вінниця 3
Авант
3 лютого
Оренда приміщення вільного призначення на Соборна поверх - 1 Вінниця 3
Авант
3 лютого
Останні переглянуті
Оренда торгове приміщення на Хмельницкое шоссе поверх - 1/4 Вінниця 3
Оренда торгове приміщення на Хмельницкое шоссе поверх - 1/4
21.35 1
Вінниця, Вишенька, Хмельницкое шоссе
Авант
18 грудня 2025

Оренда торгове приміщення на Немировское шоссе поверх - 1/10 купити в Вінниця за ціною 8 930 грн. Номер пропозиції 41187 на сайті qip.ua. Здається приміщення вільного призначення на довгострокову оренду в новому мікрорайоні ЖК Сімейний Комфорт. Можливі канікули по орендній платі до 4-х місяців. Два суміжні приміщення на загальну площу 181, 9 м.кв. ( 1-ше 89, 3 м.кв.та 2-ге 92.6 м.кв.) Поруч наявний паркувальний майданчик, продуктовий магазин 24/7, гарне транспортне сполучення маршрути №19, №30 А, № 30 Б. Поруч Нова пошта, автосалони.

qip.ua - ваш надійний сайт для оренди та продажу нерухомості. Великий вибір пропозицій, найкращі ціни та перевірені агенти. Відкрийте для себе світ якісної нерухомості на qip.ua!

Повернутися наверх